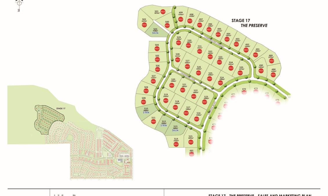
Elevated Living
Sitting proudly on the northern slopes above the wonderful Northlake Development, The Preserve has outstanding panoramic views of the Grandview Range, Mt Maude, and sunsets on Mt Gold to the north. These generously sized, terraced lots are perfectly poised to take in this glorious setting.
